Ville nouvelle de Zenata
An Eco-City in Casablanca
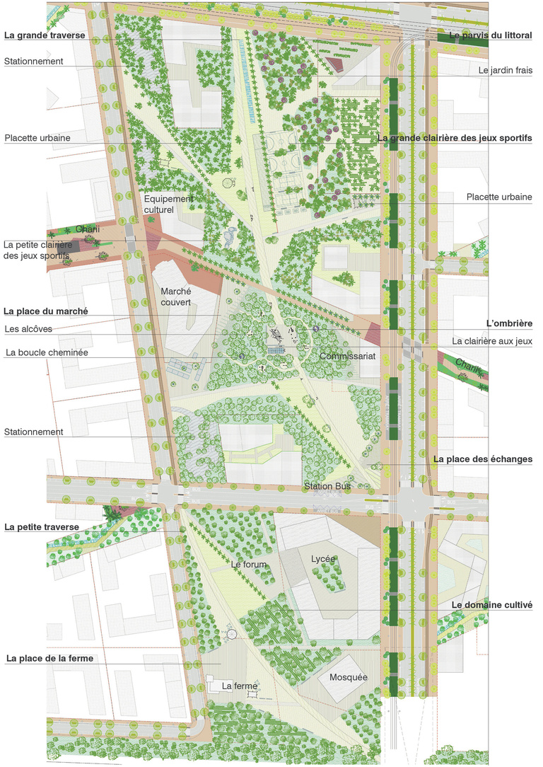
Zenata
Morocco

Urban-design commission for development of the New Town of Zenata
General development plan approved in 2015, then broken down into operational sectors and architectural studies
Project supervision of pre-project design (AVP) of the public space within the western zone of Zenata (north and south sector)
Project Owner
SAZ - Société d'Aménagement de Zenata
Project Supervision
Reichen et Robert & Associés International
Environmental design and engineering: Franck Boutté Consultants
Mobility Technical Design Office: Roland Ribi & Associés
Landscaping: agence TER
Area
Total area: 1,670 ha
West sector: 620 ha
Perspectives
Artefactory
The future town of Zenata occupies a vast territory of 1,670 hectares located at the junction between Casablanca and Mohammedia. The site is one of the last large plots in the Casablanca conurbation.






