Fondation Bel

Mission de maîtrise d'oeuvre complète
Projet réalisé, 2009
Certification
+ que RT 2005
Surfaces
2 400 m² SHON
1 200 m² surfaces crées
1 200 m² surfaces rénovées
2 300 m² Espaces extérieurs
MOA
Fromageries BEL
MOE
Architecte d’opération, mission OPC-DET : Alain Just
Fluides et électricité : INEX
Ingénierie et structures : EVP
Acoustique, audiovisuel : ALTIA
Architectes scénographes : Arc en scène
Economiste de la construction :
Lucigny Talhouet et Associés
Paysagiste : RB&Cie
Crédits
Photographe : Persona production
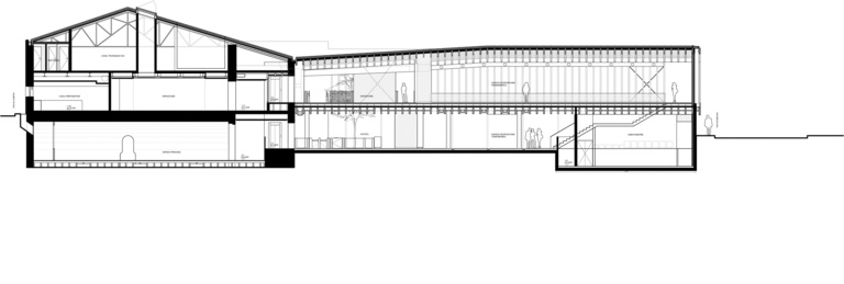
Réalisation de la Maison de la Vache qui Rit qui aura une vocation culturelle, ludique autour du patrimoine de la marque. Le programme comprend des espaces d'exposition, des espaces de jeux pour les enfants ainsi qu'un bar et une boutique.
Notre envie première d’architecte consistait à dessiner pour la Maison de la Vache Qui Rit un espace complémentaire à l’imaginaire qu’elle véhicule et aux valeurs qu’elle incarne, ainsi qu’un bâtiment représentatif d’une région qui l’a vu naître et prospérer.
En dessinant un volume suspendu au-dessus d’un jardin continu, nous suggérions un imaginaire, en exprimant une boîte dont l’architecture est liée à sa technique de construction et à l’utilisation du mélèze, nous lui donnions une identité.
Cette boîte, complétée d’une transparence à rez-de-chaussée et d’un jardin vertical sous la verrière du hall, invite le visiteur à entrer et découvrir ce lieu. Les parcours et les vues intérieurs-extérieurs, souvent basés sur les diagonales des espaces, les font voir plus grands, qu’ils ne le sont, mais ils conservent une échelle intime et domestique.
La découverte du parcours architectural et muséographique est ainsi «dans la boîte» et «dans les entre-deux» : dans le dialogue entre le bâtiment existant et l’extension contemporaine, entre l’intérieur et l’extérieur, entre les transparences et les opacités, entre la lumière et les ombres.
Nous voulions que les sensations du visiteur soient multiples, tout en gardant une simplicité et une évidence, afin que chacun soit le bienvenu à la «Maison».
Marc Warnery

















